Accompagnement de projets
Patrimoine religieux pour le climat
Un lieu communautaire et culturel
L’église Notre-Dame-de-Bonsecours de Montebello a été construite en 1896 d’après les plans de Napoléon Bourassa, artiste important dans l’histoire de l’art du Québec. L’église fait partie d’un ensemble de bâtiments patrimoniaux qui témoignent de l’influence des familles Papineau et Bourassa sur le développement de Montebello et de sa région. En 2007, l’église et son presbytère ont été cités par la municipalité. En 2021, la municipalité est devenue propriétaire de l’église Notre-Dame-de-Bonsecours.
En 2018, il y a eu la mobilisation et la concertation de plusieurs intervenants pour discuter du futur de l’église avec le Comité sur l’avenir de l’église Notre-Dame-de-Bonsecours. Des études quant aux besoins de Montebello et de sa population ont été réalisées. Il s’est avéré impératif de munir les citoyens de la MRC de Papineau d’une infrastructure culturelle à vocation supralocale. Ce besoin a été identifié et validé dans plusieurs consultations publiques. D’autre part, le Centre d’action culturelle de la MRC de Papineau, un OBNL offrant une programmation culturelle à la population, a besoin de nouveaux locaux et d’équipements. Il est aussi important pour la municipalité de conserver un espace pouvant accueillir de grands rassemblements à Montebello.
Mandat Écobâtiment
Écobâtiment a été mandaté pour accompagner la municipalité dans sa réflexion sur les différentes vocations possibles pour l'ancienne église et son site. La priorité demeure le maintien de la vocation communautaire et collective.
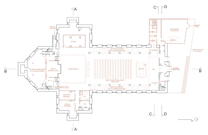
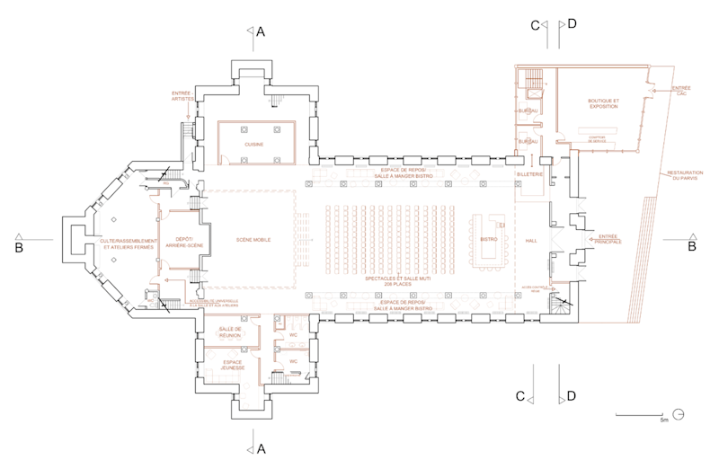
L'espace doit également concilier la coexistence d'un centre d'action culturel et une salle multifonctionnelle.
Exploration de scénarios favorisant la coexistence de deux usages
La vision concernant l'avenir de l'église décrit un projet visant à créer un lieu communautaire dynamique à Montebello, en combinant des espaces multifonctionnels de rassemblement avec un Centre d'action culturelle. L'objectif est de renforcer la vitalité du centre du village en mutualisant certains espaces pour que les deux programmes coexistent harmonieusement. Cette vision s'étend également à l'espace public du parc et de la rue principale pour créer un ensemble cohérent où l'église occupe une place centrale dans la vie communautaire. Ce lieu de rencontre répond non seulement aux besoins locaux, mais pourrait également contribuer à l'offre touristique de Montebello pour la tenue d'autres événements régionaux.
Le premier scénario exploré comprend l'ajout d’une passerelle pour connecter les transepts, de l'aménagement d'un centre d'exposition et d'une salle multifonctionnelle dans la nef.
Le deuxième scénario vise un réaménagement des bas-côtés pour loger les espaces d’exposition tout en préservant la perspective visuelle dans la nef ouverte sur la salle multifonctionnelle.
Le troisième scénario explore l'ajout d’une annexe contemporaine vitrée et invitante pour héberger le centre d’exposition et ainsi permettre l'aménagement d'une salle multifonctionnelle plus spacieuse et versatile dans la nef.
Pour consulter le rapport complet : Étude de potentiel Église Notre-Dame-de-Bonsecours
Rendus des scénarios








L'église Notre-Dame-de-Bonsecours en image







