Accompagnement de projets
Patrimoine religieux pour le climat
Église Notre-Dame-de-l'Assomption
L’église Notre-Dame-de-l’Assomption a été inaugurée en 1964. L’église et son presbytère sont répertoriés dans l’Inventaire des lieux de culte du Québec du Conseil du patrimoine religieux du Québec. En 2011, les paroisses Sainte-Trinité, Sainte-Famille et Notre-Dame-de-l’Assomption ont fusionné pour former la paroisse actuelle de Sainte-Victoire. La Fabrique, en partenariat avec la Ville de Victoriaville, réfléchit à l’avenir de l’église et du presbytère de Notre-Dame-de-l’Assomption. Cette planification s’inscrit dans une réflexion plus globale sur l’avenir des trois églises de la paroisse Sainte-Victoire de Victoriaville.
Mandat Écobâtiment
Dans une démarche collaborative menée par la Fabrique et la Ville de Victoriaville, Écobâtiment avait pour mandat de produire les esquisses de trois scénarios de revalorisation de l’église et du presbytère de Notre-Dame-de-l’Assomption. L’objectif est d’assurer à long terme la valorisation de son patrimoine religieux ainsi que l’adéquation avec les besoins du milieu.
La prochaine étape, envisagée avec le soutien d’Écobâtiment, serait d'organiser une consultation publique incluant des ateliers de co-création avec les citoyens et des représentants d'organismes locaux pour explorer comment le site de l’église Notre-Dame-de-l’Assomption pourrait répondre aux besoins de la collectivité.
Le développement durable au coeur de la conception
À travers les trois scénarios proposés, l’objectif est de faire de l’église de Notre-Dame-de-l’Assomption un lieu rassembleur et dynamique, afin de favoriser les interactions intergénérationnelles et répondre aux besoins sociocommunautaires de la population du quartier.
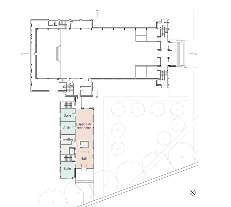
Le premier scénario vise à densifier le site en construisant des logements adaptés aux aînés autonomes et en convertissant progressivement l'église en un espace communautaire multigénérationnel.
Le deuxième scénario explore la possibilité de changer la vocation de l'église et du presbytère pour en faire un centre d'agriculture urbaine avec des jardins communautaires, une cuisine collective et des ateliers culinaires.
Enfin, le troisième scénario envisage la construction d'un agrandissement et une profonde transformation du presbytère pour la conversion de l'église en un centre communautaire avec des salles et des bureaux adaptés à la vocation communautaire, et la transformation progressive de l'église en une salle multifonctionnelle.
Pour consulter le rapport complet : Étude de potentiel de Notre-dame-de-l'Assomption
Rendus des scénarios








L'église Notre-Dame-de-l'Assomption en image







