Accompagnement de projets
Patrimoine religieux pour le climat
Le plus ancien presbytère en Amérique du Nord
Le complexe du presbytère de Saint-Michel-de-Bellechasse comprend le vieux presbytère, la grange à dîme et les terrains adjacents. Les bâtiments datent respectivement de 1739 et de 1818, cela fait de lui le plus ancien presbytère en Amérique du Nord. La grange est un exemplaire rare de sa fonction, ce qui en fait un trésor patrimonial. Le site est dans un contexte végétalisé, aux abords du fleuve Saint-Laurent, et près de la marina de Saint-Michel-de-Bellechasse.
Les bâtiments et les terrains appartiennent à la municipalité. Le presbytère et la grange sont présentement utilisés comme entrepôts municipaux. Le presbytère a subi un manque d’entretien, mettant à risque sa sauvegarde et sa longévité. Par conséquent, une consultation publique eut lieu auprès des citoyens pour comprendre leur attachement au presbytère et leur intérêt à sa revalorisation. Il s’est avéré que la population tient à un projet de reconversion du presbytère et de son site. La Société des Amis du Presbytère de Saint-Michel-de-Bellechasse fut alors créée dans le but d’entreprendre sa préservation et la pérennité de ce bâtiment.
Mandat Écobâtiment
La Société des Amis du Presbytère de Saint-Michel-de-Bellechasse souhaite valoriser et préserver son patrimoine bâti et a donc mandaté Écobâtiment pour réaliser une étude de potentiel sur les immeubles et les terrains du site du presbytère. Les résultats de cette étude guideront la réflexion de la Société afin de sauvegarder et de valoriser l'ensemble immobilier du presbytère.
Un lieu de convergence et de rassemblement en lien avec le fleuve
Par sa localisation dans le noyau villageois de Saint-Michel-de-Bellechasse, le site est un lieu de convergence et de rassemblement où se retrouvent tant les Michelois(es) que les visiteurs d'une journée. Son lien de proximité avec le fleuve a un pouvoir à la fois attracteur et apaisant.
Jadis enclos paroissial, il se transforme aujourd'hui en espace ouvert et animé, célébrant des vues paysagères du fleuve et sa rive nord montagneuse. Les scénarios explorés visent à conserver cette identité, tout en offrant une opportunité d'exploration culturelle renouvelée.
Le premier scénario exploré propose des interventions conservatrices sur les intérieurs et les extérieurs du presbytère et de la grange à dîme. Le presbytère est aménagé en centre d’interprétation sur la culture, le patrimoine bâti et l’histoire des lieux au rez-de-chaussée, tandis que l'étage est repensé en résidences d'artistes.
Le deuxième scénario implique un changement complet d'utilisation du presbytère, avec la démolition de la cuisine d'été actuellement en mauvais état et la construction d'un agrandissement majoritairement vitré pour accueillir un espace café ouvert sur le paysage. De plus, une grande terrasse sera aménagée pour unir les deux bâtiments.
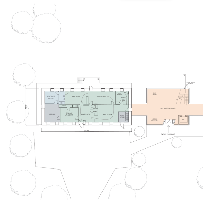
Le troisième scénario, plus ambitieux, propose un agrandissement qui connecte les deux bâtiments pour former une nouvelle entrée principale. Cet espace agrandi forme un hall multifonctionnel qui permet le rassemblement des gens.
Pour consulter le rapport complet : Étude de potentiel Presbytère Saint-Michel-de-Bellechasse
Rendus des scénarios








Presbytère Saint-Michel-de-Bellechasse en images











